在太原市娄烦县层峦叠嶂的群山间,尖山铁矿采场南帮一道全长464米的“地下防渗长城”正展露雏形。这是由山西建投勘察院公司以EPC模式总承包的尖山铁矿采场南帮土质边坡92—100勘探线防渗帷幕注浆工程。
创新设计 疏堵并举构筑立体治水网
为精准破解地质难题,项目团队在设计阶段便全面研判地层变化与地下水条件,经多轮论证,最终确定以构建高质量防渗帷幕为核心,配套外侧降水井系统,融合先进注浆工艺与科学降水技术,形成“疏堵结合、立体控制”的地下水综合治理方案。

平面布置图
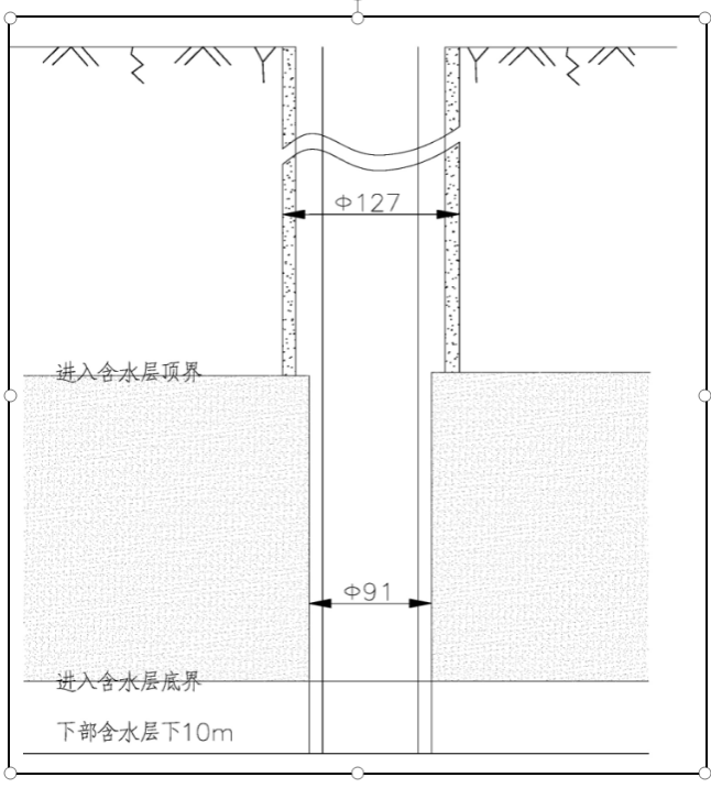
团队设计的防渗帷幕构筑起一道坚实的地下阻水屏障:沿预定轴线布设双排梅花形注浆孔,通过灌注水泥浆液形成连续坚固的地下防渗墙,有效阻断地下水渗流,提升南帮边坡的稳定性。帷幕全长约464米,西接现有结构,东延至东北侧形成完整封闭体系,共设注浆孔375个,总钻孔进尺约43000米。帷幕顶、底分别深入粉质黏土层与中风化岩层各10米,彻底截断了主要含水层,确保了帷幕连续性和阻水可靠性,为后续作业创造干燥安全条件。
与防渗帷幕“堵水”功能形成互补的是降水疏干技术。项目团队在帷幕外侧15米以外区域,按25~30米间距布设18口降水井,形成降水带以降低水位、缓解水压。结合地质与水文数据,科学设计井深60~150米,确保排水效率。井管选用φ146钢管,外包尼龙滤网及滤料层,并配备潜水泵与自动感应系统,通过实时监测地下水位变化并自动调节水泵启停,实现智能降水管理,为施工创造良好条件。
技术攻坚 破解瓶颈夯实质量根基
在复杂地质条件下开展“帷幕阻水+降水疏干”联合治理时,项目团队坚持问题导向,强化技术引领,系统施策突破钻孔成孔、孔口管作业等关键技术瓶颈,形成可复制、可推广的施工经验。

钻孔结构图
针对覆盖层松散、易塌孔这一施工难题,项目团队采用“优质泥浆护壁+跟管钻进”综合工艺。施工过程中,通过动态调整泥浆性能参数,在塌孔风险段及时提高泥浆浓度;当遇到严重塌孔风险时,立即启动跟管钻进工艺进行加固。进入注浆段后,则严格采用清水钻进工艺,确保岩面结合质量。这套工艺体系有效保障了钻孔“打得进、稳得住”,为后续作业提供了可靠保障。
针对孔口管施工中易下沉、起拔困难等技术难题,项目团队创新研发“两级钻头+注浆镶铸”工艺体系,成功攻克孔口管作业的关键瓶颈。通过优化钻头选型、细砂回填及控制注浆压力等措施,有效防止浆液上窜,待凝足够时间后再继续钻进,在保证镶铸质量的基础上,实现了全孔施工结束后孔口管的顺利起拔,从根本上消除了“卡管”隐患,为类似地质条件下的钻孔施工提供了可靠的技术解决方案。
匠心管控 精细管理铸就品质标杆
项目团队秉持“管理护航、品质为先”原则,通过精细化管理全方位保障工程质量。在技术实施环节,针对帷幕孔施工,通过“测斜—分析—纠偏”闭环机制严控成孔精度:采用高精度测斜仪定期监测孔斜情况,实时掌握施工动态。开孔阶段严格采用减压慢转工艺配合粗径钻具,确保初始垂直度达标;钻进过程中通过地锚固定、加长钻具及控制钻速等综合措施,将孔斜率始终控制在设计范围内。一旦监测发现偏斜,立即采取扫孔、回填等针对性措施进行纠偏,全过程保障钻孔位置精准,为后续施工奠定坚实基础。
灌浆质量管控贯穿施工全过程,项目团队通过多路灌浆监控系统实现自动记录与实时监测,推行“一段一策”精准控制。针对不同地层特性,先进行可灌性试验确定最佳浆液配比,采用多级水灰比动态调整,必要时添加外加剂提升浆液性能。施工中严格把控压力、注入率和时间等关键参数,确保每段灌浆质量可追溯。遇到串浆或吃浆量异常时,立即采取间歇灌浆、速凝调控和分级升压等应对措施,有效控制浆液扩散范围,既保障了防渗效果,又避免了材料浪费和地层扰动。
目前,该项目主体工程全部完成,正在进行蓄水池修建工作。下一步,项目团队将系统总结本次“疏堵结合”综合治理的技术成果与管理经验,形成标准化作业流程。同时,持续监测帷幕防渗与降水系统的运行效果,确保这一“地下防渗长城”长期稳定发挥效能,为矿山的安全生产与绿色转型提供坚实保障。